1
/
of
2
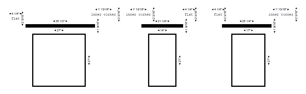
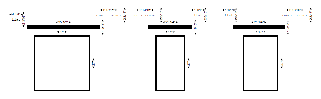
Wall Trim Kit Custom Order for Lara
Wall Trim Kit Custom Order for Lara
Regular price
$395.00 CAD
Regular price
$986.00 CAD
Sale price
$395.00 CAD
Unit price
/
per
Shipping calculated at checkout.
Couldn't load pickup availability
4 cm chair rail
2.6 cm panels
Product features
Product features
Share

