1
/
of
4
Wall Trim Kit Custom Order for Emily
Wall Trim Kit Custom Order for Emily
Regular price
$452.00 CAD
Regular price
$1,130.00 CAD
Sale price
$452.00 CAD
Unit price
/
per
Shipping calculated at checkout.
Couldn't load pickup availability
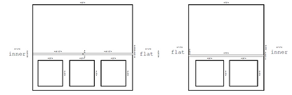
4 cm chair rail
2.6 cm panels
Product features
Product features
Share
